中古一戸建て NEW PRICE DOWN

神戸市北区上津台5丁目

築10年以内 駐車場2台可 50坪以上 接道6m以上 駐車場1台無料 上下水道完備 角部屋

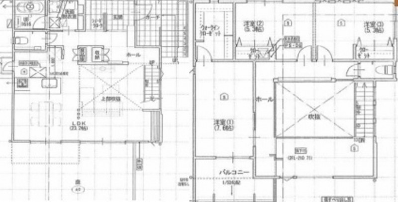
【角地】★築浅★リビング吹抜け・人工芝の広いお庭あり

物件概要

所在地 神戸市北区上津台5丁目 価格 6,580 万円
交通

神戸電鉄 有馬・三田線 三田駅 バス16分乗車 バス停上津台北 まで 徒歩4分

土地権利 所有権
小学校区 長尾 (700m) 中学校区 北神戸 (m)
間取り 3LDK 築年数 2019年(令和元)9月
土地面積 公簿 212.55㎡(64.29坪) 建物面積 118.82㎡ (35.94坪)
地目 宅地 私道負担 なし
都市計画 市街化区域 用途地域 1種中高
建ぺい率 60% 容積率 200%
上水道 公共 下水道 公共
ガス 都市ガス 現況 居住中
構造 木造 スレート葺 駐車場 有 普通3台
取引態様 仲介 明渡 相談
設備・条件 側溝、システムキッチン、カウンターキッチン、洗浄便座、浴室乾燥機、追い焚き、床暖房、ウォークインクローゼット、モニタ付インターホン、1BOX駐車可、駐車場2台分、駐車場3台分、角部屋、エレベーター、角地、築浅、庭、リビング吹抜、カーポート、並列3台駐車可能、太陽光発電、家具家電付
備考 ※売主の契約不適合責任免責  ※現況渡し
不動産用語集

弊社では、売主様に配慮し、物件所在地を掲載していない物件がございます。
詳細については、お気軽にお問合せください。

(物件番号: 3003196)

【更新年月日】2026年04月16日
【次回更新日】2026年05月16日

周辺地図を確認する

LOGIN 会員ログイン

メールアドレス
パスワード

パスワードを忘れた方はこちら

SEARCH 物件検索

種別を選択

エリアを選択

価格



こだわり検索

三田市、神戸市北区専門の
不動産売買情報

ポータルサイトやこちらに掲載のない物件についてもお気軽にご相談ください。

079-563-0705

〒669-1537 兵庫県三田市西山2-28-3 ロイヤルスクエアA203

営業時間:10:00~18:00 / 定休日:水曜日