中古一戸建て

三田市相生町

築10年以内 駅徒歩10分以内 駐車場2台可 駐車場1台無料 上下水道完備

築浅★3階建て・並列2台駐車可能♪

物件概要

所在地 三田市相生町 価格 3,480 万円
交通

神戸電鉄 公園都市線 三田本町駅 まで 徒歩2分

JR福知山線 三田駅 まで 徒歩9分

土地権利 所有権
小学校区 三田 (m) 中学校区 八景 (m)
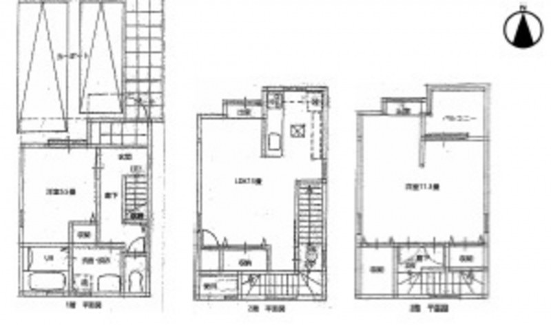
間取り 2LDK 築年数 2022年(令和4)10月
土地面積 公簿 66.81㎡(20.21坪) 建物面積 84.73㎡ (25.63坪)
地目 宅地 私道負担
都市計画 市街化区域 用途地域 1種住居
建ぺい率 60% 容積率 200%
上水道 公共 下水道 公共
ガス 都市ガス 現況 居住中
構造 木造 駐車場 有 2台
取引態様 代理 明渡 相談
設備・条件 システムキッチン、カウンターキッチン、洗浄便座、複層ガラス、ウォークインクローゼット、モニタ付インターホン、1BOX駐車可、トイレ2箇所
備考
不動産用語集

弊社では、売主様に配慮し、物件所在地を掲載していない物件がございます。
詳細については、お気軽にお問合せください。

(物件番号: 3002930)

【更新年月日】2025年10月20日
【次回更新日】2026年03月20日

周辺地図を確認する

LOGIN 会員ログイン

メールアドレス
パスワード

パスワードを忘れた方はこちら

SEARCH 物件検索

種別を選択

エリアを選択

価格



こだわり検索

三田市、神戸市北区専門の
不動産売買情報

ポータルサイトやこちらに掲載のない物件についてもお気軽にご相談ください。

079-563-0705

〒669-1537 兵庫県三田市西山2-28-3 ロイヤルスクエアA203

営業時間:10:00~18:00 / 定休日:水曜日